Frabat Agence
Télécharger la fiche

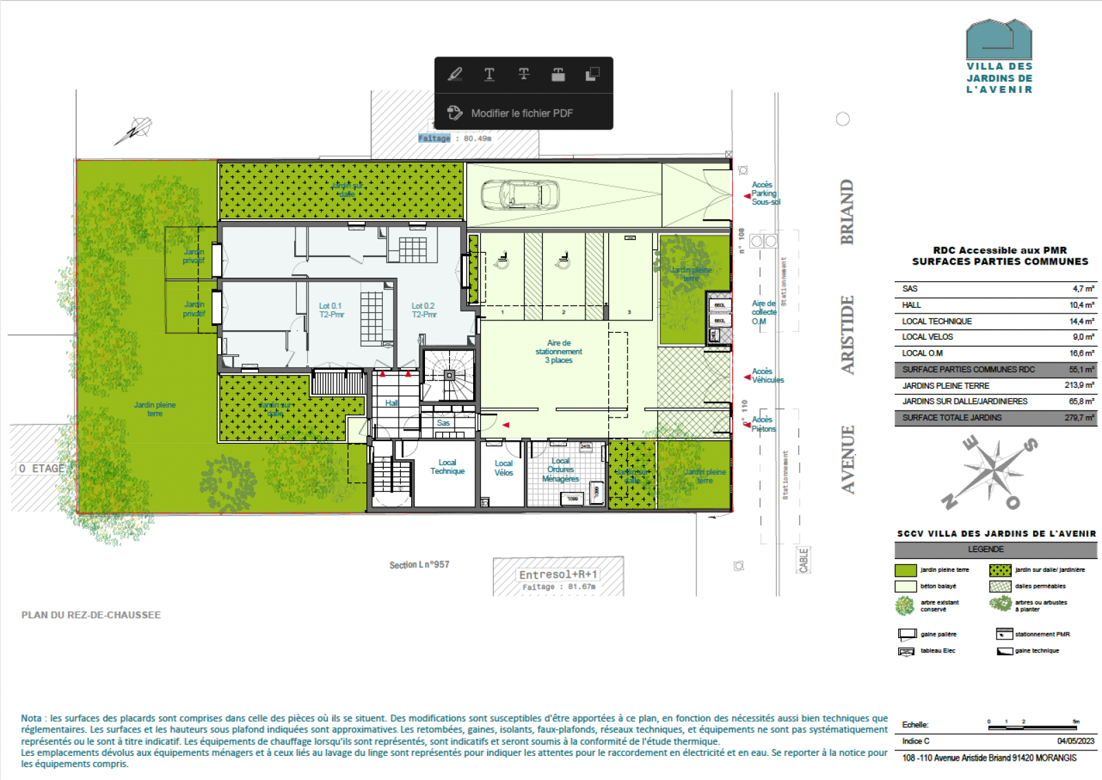
Appartement 2 pièce(s) 1 chambre(s) 45.6 m²

Morangis (91420)
254 159,78 € Référence M8

A propos de ce bien

Dans un quartier recherché, proche commerces et services, réservez votre appartement 2P de taille confortable. Programme respectant les normes RE 2020 et PMR, éligible PINEL PLUS.

Pour plus de renseignements et une présentation détaillée du programme, contactez-nous par téléphone au 01 69 30 69 69 ou par mail : massey@frabat.com

Caractéristiques de ce bien

  • Surface 45,60 m²
  • carrez 45,60 m²
  • séjour 27 m²
  • 1 chambre(s)
  • 1 salle(s) d'eau
  • Chauffage collectif : autre (pompe à chaleur)
  • exposition Sud-Ouest
  • 2ème étage
  • 2 étage(s)
  • balcon

Diagnostics énergétiques

Consommation énergétique
A B C D E F G
Emission de gaz à effet de serre
A B C D E F G
DPE non concerné

Informations financières

Prix de vente honoraires TTC inclus 254 159,78 €
Honoraires TTC à la charge acquéreur 3,5 %

Calcul des mensualités

* Champs obligatoires