Frabat Agence
Télécharger la fiche

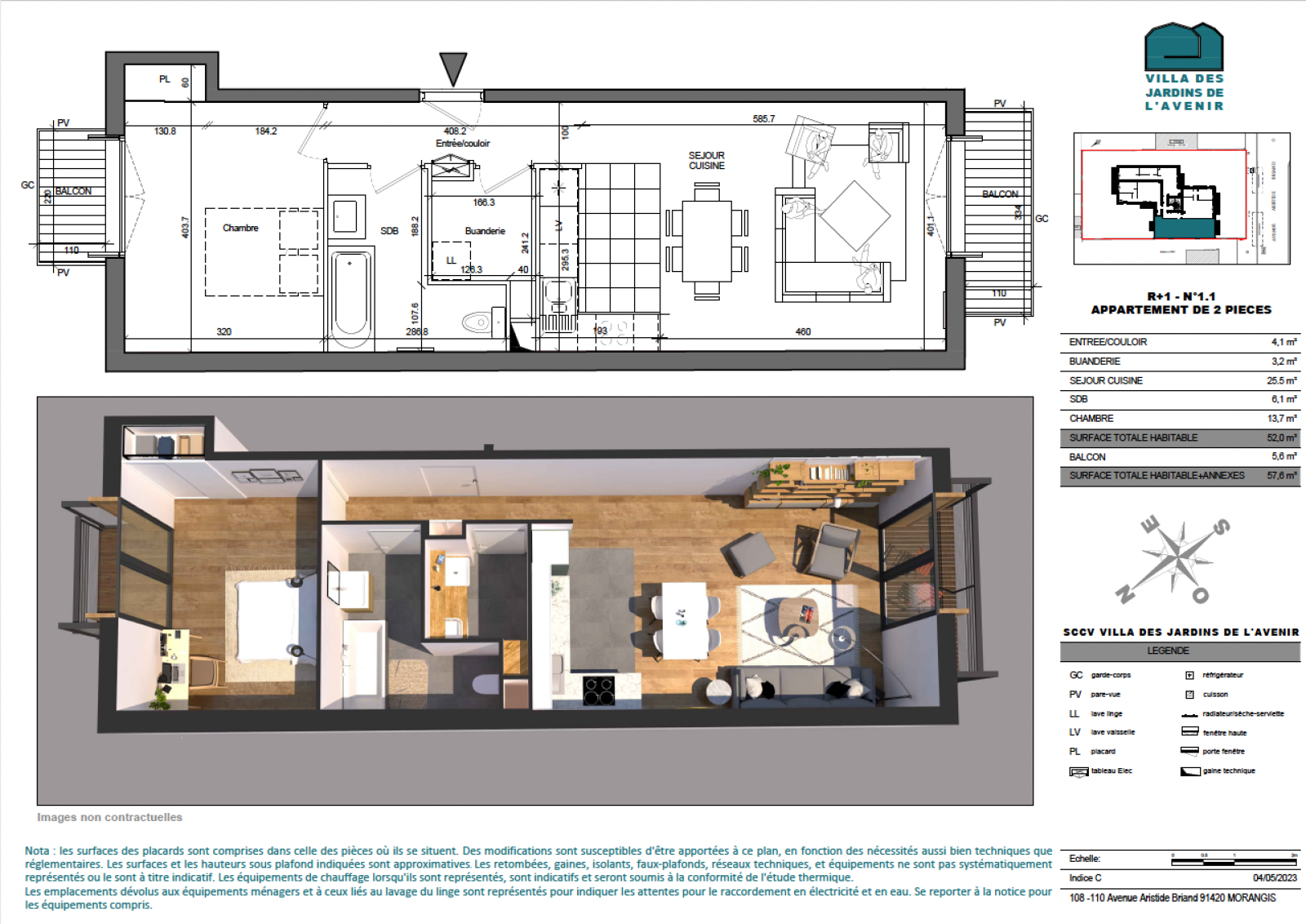
Appartement 2 pièce(s) 1 chambre(s) 52 m²

Morangis (91420)
283 590 € Référence M3

A propos de ce bien

Dans un quartier recherché, proche commerces et services, reservez votre appartement 2P de taille confortable. Programme respectant les normes RE2020 et PMR, éligible PINEL PLUS.

Pour plus de renseignements et une présentation détaillée du programme, contactez-nous par téléphone au 01 69 30 69 69 ou par mail: massey@frabat.com

Caractéristiques de ce bien

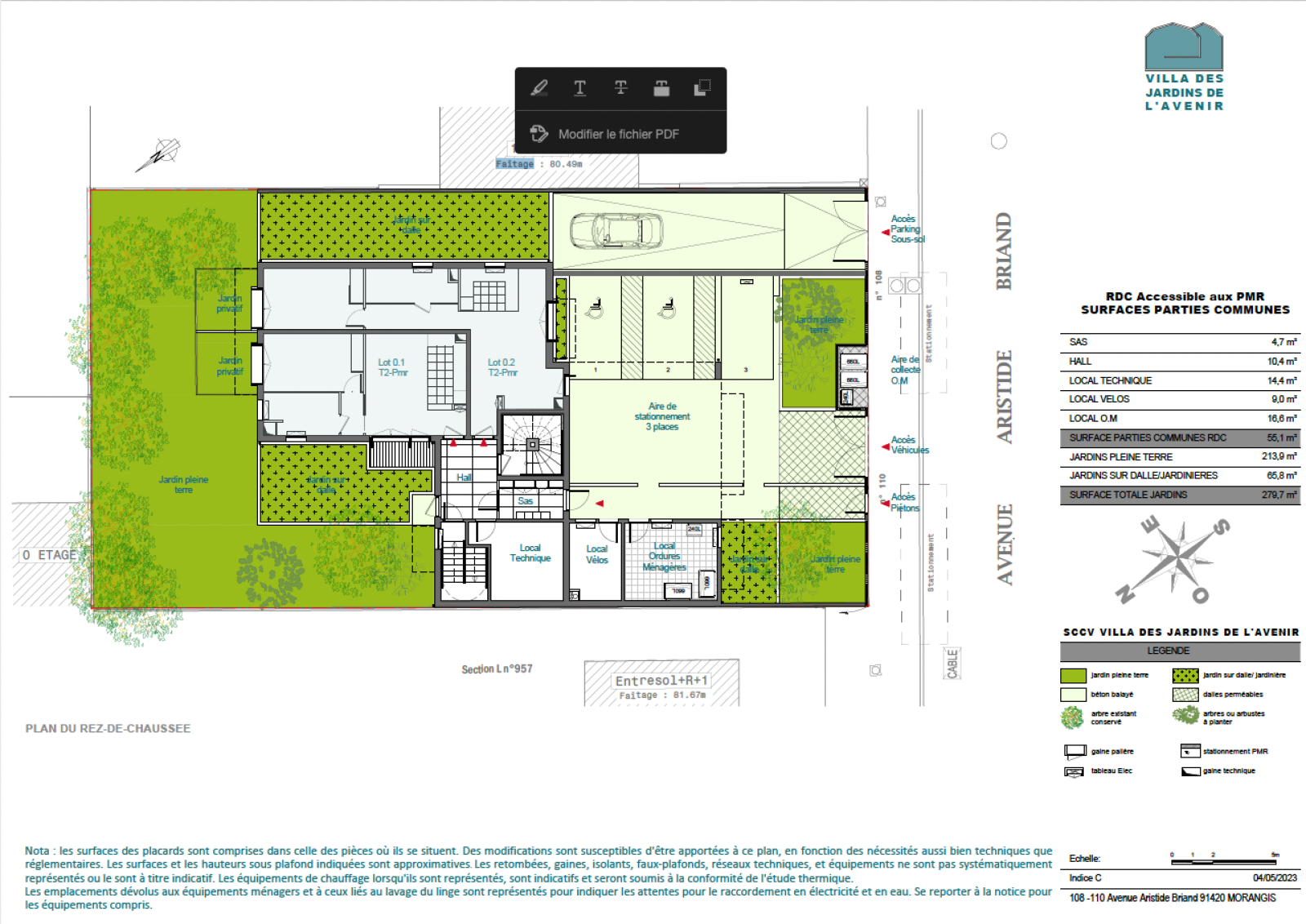
  • Surface 52 m²
  • carrez 52 m²
  • séjour 25,50 m²
  • 1 chambre(s)
  • 1 salle(s) de bain
  • exposition Sud-Est
  • 1er étage
  • 2 étage(s)
  • balcon

Diagnostics énergétiques

Consommation énergétique
A B C D E F G
Emission de gaz à effet de serre
A B C D E F G
DPE non concerné

Informations financières

Prix de vente honoraires TTC inclus 283 590 €
Honoraires TTC à la charge acquéreur 3,5 %

Informations de copropriété

Copropriété Oui
Nombre de lots 10

Calcul des mensualités

* Champs obligatoires